Напольный люк Самоподъемный Невидимка короб 2 створки в Благовещенске
Уважаемые покупатели!
В связи с участившимися случаями подделок продукции нашего производства, вынуждены сообщить, что гарантировать качество данного изделия и осуществлять постпродажное (гарантийное) обслуживание мы можем только при наличии данной пометки в номенклатуре люка, в КП, в счетах, в накладных, в счет фактурах, на сайтах-партнерах. Бренд "лючки.рф" является зарегистрированным товарным знаком и защищен законодательно.
Если Вам предлагается идентичная номенклатура, но без приписки "лючки.рф ®" это означает, что продукт изготовлен не на нашем заводе со всеми вытекающими последствиями (провисание, ржавение, несоблюдение диагоналей, несоблюдение зазоров, отсутствие гарантийных обязательств и многое другое). Зачастую такую продукцию реализуют фирмы-однодневки.











| Количество створок | Эффект невидимки | Уплотнитель | Схема открывания | Подъемный механизм | Посадочные размеры | Габаритные размеры | Размеры дверцы | Размер проема в свету | Материал петли | Материал | Прочие размеры | Вес | Наличие | Тип | Возможность открывания изнутри | Облицовочный материал | ||||||
|---|---|---|---|---|---|---|---|---|---|---|---|---|---|---|---|---|---|---|---|---|---|---|
| Ширина (мм) | Длина (мм) | Ширина (мм) | Длина (мм) | Глубина (мм) | Ширина (мм) | Длина (мм) | Ширина (мм) | Длина (мм) | Глубина по петле (мм) | Глубина короба (мм) | (кг) | |||||||||||
| Двустворчатый | Максимальный | Есть | Распашная дверца | Газовые амортизаторы | 1000 | 1000 | 1000 | 1000 | 97 | 930 | 985 | 890 | 940 | Сталь | Сталь | 97 | 57 | 42 | Под заказ | Нестандарт | Есть | Плитка, Паркет, Линолеум, Ламинат, Доска |
| Двустворчатый | Максимальный | Есть | Распашная дверца | Газовые амортизаторы | 1000 | 1050 | 1000 | 1050 | 97 | 930 | 1035 | 890 | 990 | Сталь | Сталь | 97 | 57 | 42.74 | Под заказ | Нестандарт | Есть | Плитка, Паркет, Доска, Линолеум, Ламинат |
| Двустворчатый | Максимальный | Есть | Распашная дверца | Газовые амортизаторы | 1000 | 1100 | 1000 | 1100 | 97 | 930 | 1085 | 890 | 1040 | Сталь | Сталь | 97 | 57 | 43.47 | Под заказ | Нестандарт | Есть | Линолеум, Плитка, Доска, Ламинат, Паркет |
| Двустворчатый | Максимальный | Есть | Распашная дверца | Газовые амортизаторы | 1000 | 1150 | 1000 | 1150 | 97 | 930 | 1135 | 890 | 1090 | Сталь | Сталь | 97 | 57 | 44.21 | Под заказ | Нестандарт | Есть | Ламинат, Плитка, Паркет, Доска, Линолеум |
| Двустворчатый | Максимальный | Есть | Распашная дверца | Газовые амортизаторы | 1000 | 1200 | 1000 | 1200 | 97 | 930 | 1185 | 890 | 1140 | Сталь | Сталь | 97 | 57 | 44.94 | Под заказ | Нестандарт | Есть | Доска, Плитка, Паркет, Линолеум, Ламинат |
| Двустворчатый | Максимальный | Есть | Распашная дверца | Газовые амортизаторы | 1000 | 1250 | 1000 | 1250 | 97 | 930 | 1235 | 890 | 1190 | Сталь | Сталь | 97 | 57 | 45.68 | Под заказ | Нестандарт | Есть | Ламинат, Паркет, Доска, Линолеум, Плитка |
| Двустворчатый | Максимальный | Есть | Распашная дверца | Газовые амортизаторы | 1000 | 1300 | 1000 | 1300 | 97 | 930 | 1285 | 890 | 1240 | Сталь | Сталь | 97 | 57 | 46.41 | Под заказ | Нестандарт | Есть | Плитка, Ламинат, Паркет, Доска, Линолеум |
| Двустворчатый | Максимальный | Есть | Распашная дверца | Газовые амортизаторы | 1000 | 1350 | 1000 | 1350 | 97 | 930 | 1335 | 890 | 1290 | Сталь | Сталь | 97 | 57 | 47.15 | Под заказ | Нестандарт | Есть | Плитка, Ламинат, Доска, Паркет, Линолеум |
| Двустворчатый | Максимальный | Есть | Распашная дверца | Газовые амортизаторы | 1000 | 1400 | 1000 | 1400 | 97 | 930 | 1385 | 890 | 1340 | Сталь | Сталь | 97 | 57 | 47.88 | Под заказ | Нестандарт | Есть | Плитка, Доска, Ламинат, Паркет, Линолеум |
| Двустворчатый | Максимальный | Есть | Распашная дверца | Газовые амортизаторы | 1000 | 1450 | 1000 | 1450 | 97 | 930 | 1435 | 890 | 1390 | Сталь | Сталь | 97 | 57 | 48.62 | Под заказ | Нестандарт | Есть | Доска, Ламинат, Плитка, Паркет, Линолеум |
| Двустворчатый | Максимальный | Есть | Распашная дверца | Газовые амортизаторы | 1000 | 1500 | 1000 | 1500 | 97 | 930 | 1485 | 890 | 1440 | Сталь | Сталь | 97 | 57 | 49.35 | Под заказ | Нестандарт | Есть | Линолеум, Ламинат, Плитка, Доска, Паркет |
| Двустворчатый | Максимальный | Есть | Распашная дверца | Газовые амортизаторы | 1000 | 1550 | 1000 | 1550 | 97 | 930 | 1535 | 890 | 1490 | Сталь | Сталь | 97 | 57 | 50.09 | Под заказ | Нестандарт | Есть | Доска, Плитка, Линолеум, Ламинат, Паркет |
| Двустворчатый | Максимальный | Есть | Распашная дверца | Газовые амортизаторы | 1000 | 1600 | 1000 | 1600 | 97 | 930 | 1585 | 890 | 1540 | Сталь | Сталь | 97 | 57 | 50.82 | Под заказ | Нестандарт | Есть | Ламинат, Доска, Линолеум, Плитка, Паркет |
| Двустворчатый | Максимальный | Есть | Распашная дверца | Газовые амортизаторы | 1000 | 1650 | 1000 | 1650 | 97 | 930 | 1635 | 890 | 1590 | Сталь | Сталь | 97 | 57 | 51.56 | Под заказ | Нестандарт | Есть | Линолеум, Плитка, Ламинат, Паркет, Доска |
| Двустворчатый | Максимальный | Есть | Распашная дверца | Газовые амортизаторы | 1000 | 1700 | 1000 | 1700 | 97 | 930 | 1685 | 890 | 1640 | Сталь | Сталь | 97 | 57 | 52.29 | Под заказ | Нестандарт | Есть | Доска, Плитка, Линолеум, Паркет, Ламинат |
| Двустворчатый | Максимальный | Есть | Распашная дверца | Газовые амортизаторы | 1000 | 1750 | 1000 | 1750 | 97 | 930 | 1735 | 890 | 1690 | Сталь | Сталь | 97 | 57 | 53.03 | Под заказ | Нестандарт | Есть | Ламинат, Паркет, Доска, Линолеум, Плитка |
| Двустворчатый | Максимальный | Есть | Распашная дверца | Газовые амортизаторы | 1000 | 1800 | 1000 | 1800 | 97 | 930 | 1785 | 890 | 1740 | Сталь | Сталь | 97 | 57 | 53.76 | Под заказ | Нестандарт | Есть | Ламинат, Линолеум, Доска, Паркет, Плитка |
| Двустворчатый | Максимальный | Есть | Распашная дверца | Газовые амортизаторы | 1000 | 1850 | 1000 | 1850 | 97 | 930 | 1835 | 890 | 1790 | Сталь | Сталь | 97 | 57 | 54.5 | Под заказ | Нестандарт | Есть | Паркет, Ламинат, Плитка, Линолеум, Доска |
| Двустворчатый | Максимальный | Есть | Распашная дверца | Газовые амортизаторы | 1000 | 1900 | 1000 | 1900 | 97 | 930 | 1885 | 890 | 1840 | Сталь | Сталь | 97 | 57 | 55.23 | Под заказ | Нестандарт | Есть | Паркет, Ламинат, Доска, Линолеум, Плитка |
| Двустворчатый | Максимальный | Есть | Распашная дверца | Газовые амортизаторы | 1000 | 1950 | 1000 | 1950 | 97 | 930 | 1935 | 890 | 1890 | Сталь | Сталь | 97 | 57 | 55.97 | Под заказ | Нестандарт | Есть | Ламинат, Линолеум, Паркет, Доска, Плитка |
| Двустворчатый | Максимальный | Есть | Распашная дверца | Газовые амортизаторы | 1000 | 2000 | 1000 | 2000 | 97 | 930 | 1985 | 890 | 1940 | Сталь | Сталь | 97 | 57 | 56.7 | Под заказ | Нестандарт | Есть | Линолеум, Ламинат, Плитка, Паркет, Доска |
| Количество створок | Эффект невидимки | Уплотнитель | Схема открывания | Подъемный механизм | Посадочные размеры | Габаритные размеры | Размеры дверцы | Размер проема в свету | Материал петли | Материал | Прочие размеры | Вес | Наличие | Тип | Возможность открывания изнутри | Облицовочный материал | ||||||
|---|---|---|---|---|---|---|---|---|---|---|---|---|---|---|---|---|---|---|---|---|---|---|
| Ширина (мм) | Длина (мм) | Ширина (мм) | Длина (мм) | Глубина (мм) | Ширина (мм) | Длина (мм) | Ширина (мм) | Длина (мм) | Глубина по петле (мм) | Глубина короба (мм) | (кг) | |||||||||||
| Двустворчатый | Максимальный | Есть | Распашная дверца | Газовые амортизаторы | 1000 | 1000 | 1000 | 1000 | 97 | 930 | 985 | 890 | 940 | Сталь | Сталь | 97 | 57 | 42 | Под заказ | Нестандарт | Есть | Плитка, Паркет, Линолеум, Ламинат, Доска |
| Двустворчатый | Максимальный | Есть | Распашная дверца | Газовые амортизаторы | 1000 | 1050 | 1000 | 1050 | 97 | 930 | 1035 | 890 | 990 | Сталь | Сталь | 97 | 57 | 42.74 | Под заказ | Нестандарт | Есть | Плитка, Паркет, Доска, Линолеум, Ламинат |
| Двустворчатый | Максимальный | Есть | Распашная дверца | Газовые амортизаторы | 1000 | 1100 | 1000 | 1100 | 97 | 930 | 1085 | 890 | 1040 | Сталь | Сталь | 97 | 57 | 43.47 | Под заказ | Нестандарт | Есть | Линолеум, Плитка, Доска, Ламинат, Паркет |
| Двустворчатый | Максимальный | Есть | Распашная дверца | Газовые амортизаторы | 1000 | 1150 | 1000 | 1150 | 97 | 930 | 1135 | 890 | 1090 | Сталь | Сталь | 97 | 57 | 44.21 | Под заказ | Нестандарт | Есть | Ламинат, Плитка, Паркет, Доска, Линолеум |
| Двустворчатый | Максимальный | Есть | Распашная дверца | Газовые амортизаторы | 1000 | 1200 | 1000 | 1200 | 97 | 930 | 1185 | 890 | 1140 | Сталь | Сталь | 97 | 57 | 44.94 | Под заказ | Нестандарт | Есть | Доска, Плитка, Паркет, Линолеум, Ламинат |
| Двустворчатый | Максимальный | Есть | Распашная дверца | Газовые амортизаторы | 1000 | 1250 | 1000 | 1250 | 97 | 930 | 1235 | 890 | 1190 | Сталь | Сталь | 97 | 57 | 45.68 | Под заказ | Нестандарт | Есть | Ламинат, Паркет, Доска, Линолеум, Плитка |
| Двустворчатый | Максимальный | Есть | Распашная дверца | Газовые амортизаторы | 1000 | 1300 | 1000 | 1300 | 97 | 930 | 1285 | 890 | 1240 | Сталь | Сталь | 97 | 57 | 46.41 | Под заказ | Нестандарт | Есть | Плитка, Ламинат, Паркет, Доска, Линолеум |
| Двустворчатый | Максимальный | Есть | Распашная дверца | Газовые амортизаторы | 1000 | 1350 | 1000 | 1350 | 97 | 930 | 1335 | 890 | 1290 | Сталь | Сталь | 97 | 57 | 47.15 | Под заказ | Нестандарт | Есть | Плитка, Ламинат, Доска, Паркет, Линолеум |
| Двустворчатый | Максимальный | Есть | Распашная дверца | Газовые амортизаторы | 1000 | 1400 | 1000 | 1400 | 97 | 930 | 1385 | 890 | 1340 | Сталь | Сталь | 97 | 57 | 47.88 | Под заказ | Нестандарт | Есть | Плитка, Доска, Ламинат, Паркет, Линолеум |
| Двустворчатый | Максимальный | Есть | Распашная дверца | Газовые амортизаторы | 1000 | 1450 | 1000 | 1450 | 97 | 930 | 1435 | 890 | 1390 | Сталь | Сталь | 97 | 57 | 48.62 | Под заказ | Нестандарт | Есть | Доска, Ламинат, Плитка, Паркет, Линолеум |
| Двустворчатый | Максимальный | Есть | Распашная дверца | Газовые амортизаторы | 1000 | 1500 | 1000 | 1500 | 97 | 930 | 1485 | 890 | 1440 | Сталь | Сталь | 97 | 57 | 49.35 | Под заказ | Нестандарт | Есть | Линолеум, Ламинат, Плитка, Доска, Паркет |
| Двустворчатый | Максимальный | Есть | Распашная дверца | Газовые амортизаторы | 1000 | 1550 | 1000 | 1550 | 97 | 930 | 1535 | 890 | 1490 | Сталь | Сталь | 97 | 57 | 50.09 | Под заказ | Нестандарт | Есть | Доска, Плитка, Линолеум, Ламинат, Паркет |
| Двустворчатый | Максимальный | Есть | Распашная дверца | Газовые амортизаторы | 1000 | 1600 | 1000 | 1600 | 97 | 930 | 1585 | 890 | 1540 | Сталь | Сталь | 97 | 57 | 50.82 | Под заказ | Нестандарт | Есть | Ламинат, Доска, Линолеум, Плитка, Паркет |
| Двустворчатый | Максимальный | Есть | Распашная дверца | Газовые амортизаторы | 1000 | 1650 | 1000 | 1650 | 97 | 930 | 1635 | 890 | 1590 | Сталь | Сталь | 97 | 57 | 51.56 | Под заказ | Нестандарт | Есть | Линолеум, Плитка, Ламинат, Паркет, Доска |
| Двустворчатый | Максимальный | Есть | Распашная дверца | Газовые амортизаторы | 1000 | 1700 | 1000 | 1700 | 97 | 930 | 1685 | 890 | 1640 | Сталь | Сталь | 97 | 57 | 52.29 | Под заказ | Нестандарт | Есть | Доска, Плитка, Линолеум, Паркет, Ламинат |
| Двустворчатый | Максимальный | Есть | Распашная дверца | Газовые амортизаторы | 1000 | 1750 | 1000 | 1750 | 97 | 930 | 1735 | 890 | 1690 | Сталь | Сталь | 97 | 57 | 53.03 | Под заказ | Нестандарт | Есть | Ламинат, Паркет, Доска, Линолеум, Плитка |
| Двустворчатый | Максимальный | Есть | Распашная дверца | Газовые амортизаторы | 1000 | 1800 | 1000 | 1800 | 97 | 930 | 1785 | 890 | 1740 | Сталь | Сталь | 97 | 57 | 53.76 | Под заказ | Нестандарт | Есть | Ламинат, Линолеум, Доска, Паркет, Плитка |
| Двустворчатый | Максимальный | Есть | Распашная дверца | Газовые амортизаторы | 1000 | 1850 | 1000 | 1850 | 97 | 930 | 1835 | 890 | 1790 | Сталь | Сталь | 97 | 57 | 54.5 | Под заказ | Нестандарт | Есть | Паркет, Ламинат, Плитка, Линолеум, Доска |
| Двустворчатый | Максимальный | Есть | Распашная дверца | Газовые амортизаторы | 1000 | 1900 | 1000 | 1900 | 97 | 930 | 1885 | 890 | 1840 | Сталь | Сталь | 97 | 57 | 55.23 | Под заказ | Нестандарт | Есть | Паркет, Ламинат, Доска, Линолеум, Плитка |
| Двустворчатый | Максимальный | Есть | Распашная дверца | Газовые амортизаторы | 1000 | 1950 | 1000 | 1950 | 97 | 930 | 1935 | 890 | 1890 | Сталь | Сталь | 97 | 57 | 55.97 | Под заказ | Нестандарт | Есть | Ламинат, Линолеум, Паркет, Доска, Плитка |
| Двустворчатый | Максимальный | Есть | Распашная дверца | Газовые амортизаторы | 1000 | 2000 | 1000 | 2000 | 97 | 930 | 1985 | 890 | 1940 | Сталь | Сталь | 97 | 57 | 56.7 | Под заказ | Нестандарт | Есть | Линолеум, Ламинат, Плитка, Паркет, Доска |
| Цена |
|---|
| Розничная цена |
| 40 936 |
| 44 976 |
| 45 611 |
| 46 249 |
| 46 888 |
| 47 529 |
| 48 101 |
| 55 225 |
| 55 922 |
| 56 625 |
| 57 583 |
| 69 357 |
| 70 129 |
| 70 896 |
| 72 878 |
| 74 993 |
| 75 853 |
| 76 699 |
| 79 660 |
| 83 070 |
| 86 068 |
Можно открыть из комнаты или погреба
Эффект автоматического открывания + Повышенный уровень безопасности
Очень прочная конструкция
Максимально незаметен после облицовки материалом
Повышенная защита от влаги, пыли и шума
Общие параметры
Доска;
Ламинат;
Паркет;
Линолеум
Погрешность при производстве может составлять +- 2 мм.
Производитель на свое усмотрение и без дополнительных уведомлений может менять комплектацию, внешний вид и технические характеристики модели.
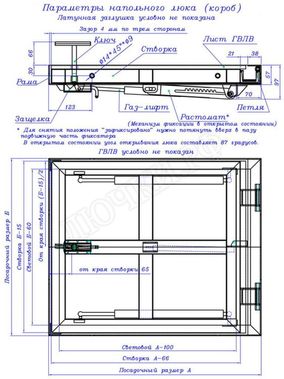
Напольный люк Самоподъемный Невидимка короб размером 1000*1150 (1150 - петлевая сторона) с 2-мя створками можно сделать в 2-х вариантах:
1) деление 1150 пополам, петли по 1150
2) деление 1000 пополам, петли напротив друг друга, петли по 1150
Такие люки производятся под заказ по предоплате, т.к. изделия нестандартные
Услуги замера и монтажа временно не предоставляются
Приносим извинения за возможные неудобства
Стоимость работ по монтажу
| Стоимость работ по монтажу люков | ||||
|---|---|---|---|---|
| Модель | Стоимость работ | Стоимость материала для монтажа | ||
| Напольный | ||||
| Съемный | от 8000 | от 2000 | ||
| На петле | ||||
| Настенный | ||||
| Металлический сантехнический размеры от 200 до 500мм | от 500 | от 200 | ||
| Металлический сантехнический размеры от 500 до 1000мм | от 1000 | от 500 | ||
| Под плитку размеры от 200 до 500 мм | от 2500 | от 500 | ||
| Под плитку размеры от 500 до 1000 мм | от 3500 | от 1000 | ||
| Под покраску размеры от 200 до 500 мм | от 2500 | от 500 | ||
| Под покраску размеры от 500 до 1000 мм | от 3500 | от 1000 | ||
| Потолочный | ||||
| Под покраску от 200 до 500 мм | от 2500 | от 500 | ||
| Под покраску от 500 до 1000 мм | от 3000 | от 1000 | ||
| Стоимость работ по установке чердачных лестниц | ||||
| Тип работ | Стоимость работ | |||
| Деревянные чердачные лестницы, установка в готовый проем | 5000 ₽ | |||
| Металлические чердачные лестницы, установка в готовый проем | 7500 ₽ | |||
| Подготовка проема под установку лестнице (в зависимости от сложности работ, кроме бетонных проемов) | от 2000 до 5000 ₽ | |||
| Подготовка проема в бетонном перекрытии | от 5000 | |||
| Стоимость услуг по установке окон-люков | ||||
| Тип работ | Стоимость работ | |||
| Установка окон-люков в готовый проем без подведения кровельного покрытия | 5000 ₽ | |||
| Установка окон-люков в готовый проем без подведения кровельного покрытия с переносом стропильной системы | 8000 ₽ | |||
| Установка окон-люков в готовый кровельный пирог (Битумная, натуральная, металлочерепица) | 10000 ₽ | |||
| Установка окон-люков в готовый кровельный пирог с переносом стропильной системы (Битумная, натуральная, металлочерепица) | 13000 ₽ | |||
| Установка окон-люков в фальцевую кровлю (Клик фальц, двойной стоящий фальц, оцинковка и т.п.) | от 18000 ₽ | |||
В стоимость работ не входит:
- Укладка плитки;
- Шпатлевка;
- Подготовка проема;
- Укрепление проема;
- Утепление люка.
ВНИМАНИЕ! Дополнение по установке и замеру чердачных лестниц: Выезд на замер осуществляется платно, до первого малого бетонного кольца 1 500 ₽, от малого и далее по Московской области 2 000 ₽.
* Стоимость монтажа и установочных работ может отличаться от прайса. Подробную информацию уточняйте у менеджеров магазина.
* Расходный материал при установке чердачных лестниц в стоимость монтажа не входит и расчитывается индивидуально.











+7 (977) 090-10-90 


























































































































































































